GSM: +(386) 41 761 957 E-pošta: info@simobilia.si Web: www.simobilia.si
Ta nepremičnina je v našem sistemu izklopljena. Lahko gre za prodano nepremičnino.
Če iščete aktualne ponudbe si jih prosim oglejte na naslednji povezavi:
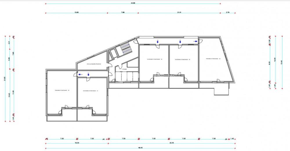
Na Prevaljah, v naselju Zgornji kraj, je v procesu pridobivanja gradbenega dovoljenja večstanovanjski objekt s 15 stanovanjskimi enotami.
Na nepremičninskem trgu bo tako na voljo skupaj 15 stanovanjskih enot v treh etažah (P+2) ta se bodo prodajala do 5 podaljšane faze.
OBJEKT
Večstanovanjski objekt bo nastal v urbanem centru Prevalj, v skladu z visokimi bivanjskimi standardi. V neposredni bližini je trgovina, slaščičarna, zobozdravnik, igrila za otroke
ter kolesarska pot.
Objekt bo grajen nizko energetsko, s kvalitetnimi materiali. Ob objektu bodo zagotovljene zelene površine ter parkirne površine.
Urejeno bo dvigalo. V kletnem delu je predvideno parkirišče, lastniška parkirna mesta pa bodo urejena tudi pred objektom.
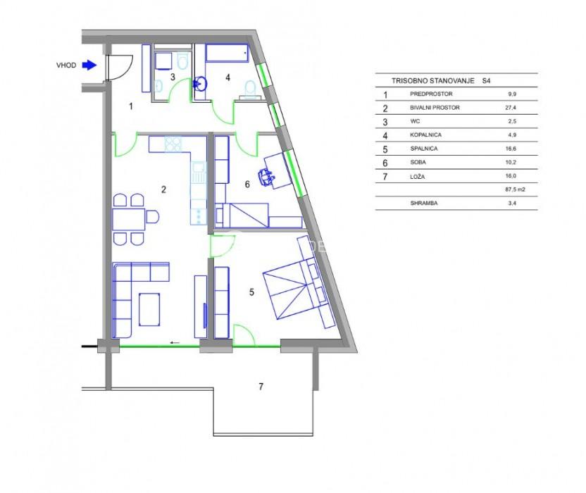
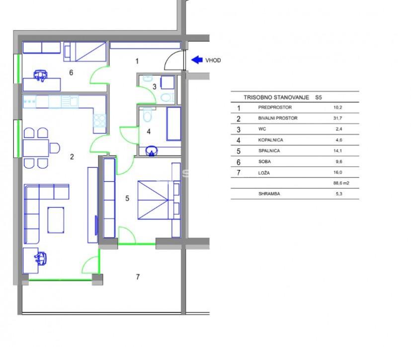
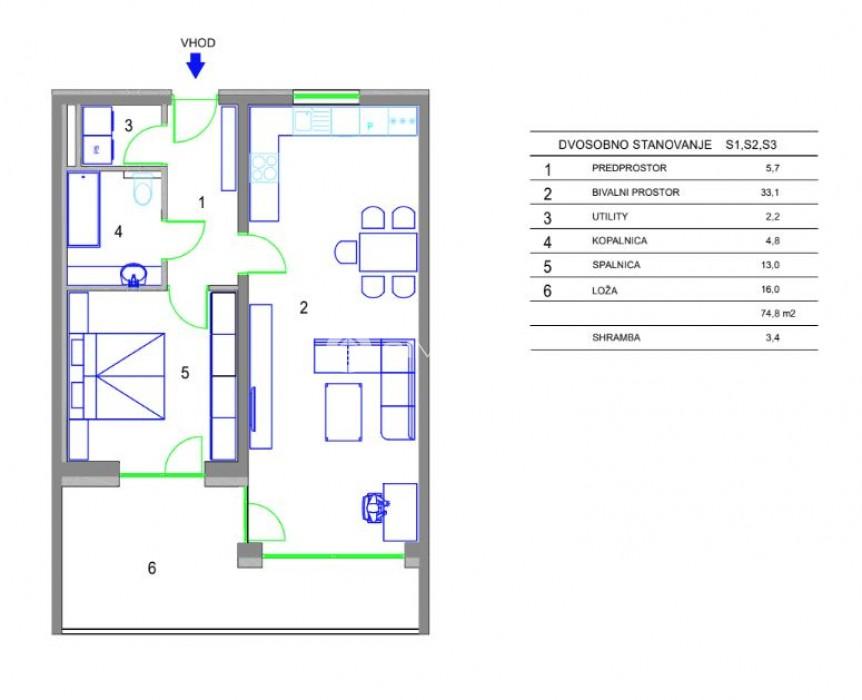
V dveh etažah bo razporejenih 15 stanovanj v izmeri od 74,8 m2 do 88,6 m2 s pripadajočo shrambo v izmeri od 3,4 m2 do 5,4 m2.
STANOVANJA
Na voljo bo:
Vsako stanovanje ima urejen balkon na južni strani objekta. Zagotovljena bo večja kvaliteta bivanja.
Vsakemu stanovanju bo zagotovljeno lastniško parkirno garažno mesto ter zunanje lastniško parkirno mesto.
CENE STANOVANJ
Cena stanovanj bodo cca 2.200,00 EUR/m2 z upoštevanim 9,5% DDV.
Cena vključuje lastniško parkirno mesto v garažni hiši in lastniško parkirno mesto na odprtem parkirišču pred objektom.
ZBIRANJE REZERVACIJ
Smo v postopku zbiranja neobvezujočih rezervacij, in sicer nas kontaktirajte na email Ta e-poštni naslov je zaščiten proti smetenju. Potrebujete Javascript za pogled., dosegljivi smo tudi na mobilno številko 031 649 378 ali 041 761 957
V primeru, da smo nedosegljivi vam bomo vrnili klic takoj ko bo možno, lahko pa nam pošljete tudi SMS sporočilo.
Za vas smo dosegljivi na 031 649 378, 041 761 957 in Ta e-poštni naslov je zaščiten proti smetenju. Potrebujete Javascript za pogled.
Posredovali vam bomo vso razpoložljivo dokumentacijo, vabljeni tudi v pisarno TRG 27 na Prevaljah po predhodnem dogovoru na 031 649 378.
SIMOBILIA nepremičnine d.o.o., Prisoje 60a, 2391 Prevalje
Prodajo, nakup, oddaja in najem hiš, poslovnih prostorov, stanovanj, vikendov, stavbnih in kmetijskih zemljišč.
POŠLJITE POVPRAŠEVANJE na info@simobilia.si ali nas pokličite na 031 649 378

Prodajate ali oddajate nepremičnino? Zaupajte to nalogo nam. Smo specializirani posrednik nepremičnin. Preverite ponudbo nepremičnin na naši spletni strani, ali pa nas kontaktirajte.
Med ponudbo nepremičnin niste našli iskanega? Zaupajte to nalogo nam. Takoj ko najdemo nepremičnino po vaših željah, vas bomo obvestili po e-pošti ali z SMS-om.